Startseite » Immobilien » 3-Raum-Wohnung mit unverbautem Blick
3-Raum-Wohnung mit unverbautem Blick
19370 Parchim, Wohnung zur Miete
Anlagen / Links
Kontaktdaten
-
NameHerr Roland Schumacher
-
FirmaAllgemeine Wohnungsbaugenossenschaft Güstrow - Parchim und Umgebung eG
-
AnschriftFriedrich-Engels-Straße 12
18273 Güstrow -
E-Mail
-
Telefon
-
Telefon
- zum Kontaktformular
Objektdaten
-
Objekt-ID6110/2/9
-
ObjekttypWohnung
-
AdressePestalozziweg 7
19370 Parchim
(Parchim Parchim) -
Etage1
-
Etagen im Haus3
-
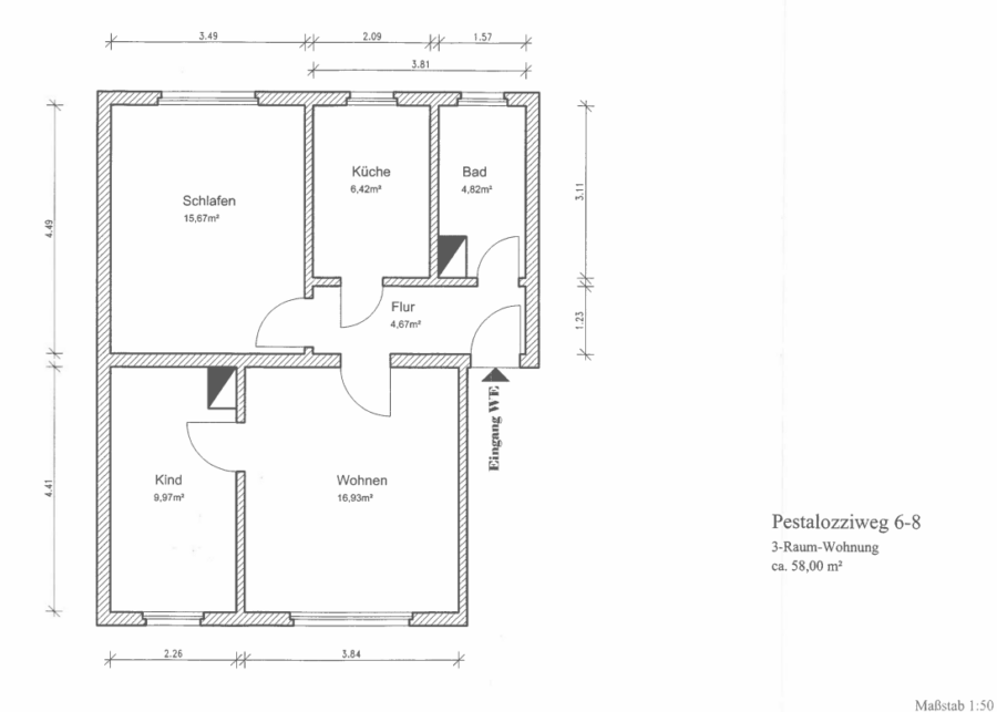
Wohnfläche ca.60,30 m²
-
Zimmer3
-
Schlafzimmer2
-
Badezimmer1
-
Balkone1
-
HeizungsartZentralheizung
-
Wesentlicher EnergieträgerGas
-
Baujahr1961
-
Verfügbar ab15.07.2026
-
Kaution2.080,00 EUR
-
Kaltmiete480,00 EUR
-
Nebenkosten100,00 EUR
-
Heizkosten100,00 EUR (in der Warmmiete enthalten)
-
Warmmiete680,00 EUR (Heizkosten enthalten)
Ausstattung / Merkmale
- ✓ Badewanne
- ✓ Balkon
- ✓ Fliesenboden
- ✓ Keller
- ✓ Kunststoffboden
Energieausweis
-
EnergieausweistypVerbrauchsausweis
-
Gültig bis01-2029
-
Baujahr1961
-
PrimärenergieträgerGas
-
Endenergieverbrauch136,00 kWh/(m²·a)
-
Warmwasser enthaltenja
-
EnergieeffizienzklasseE
Objektbeschreibung
Ausstattung
Bad mit Wanne, Balkon, Flur, Kellerraum, Küchenraum
- Das Objekt liegt in einem ansprechenden Mehrfamilienhaus in gepflegter Wohnlage.
- Die Wohnung ist saniert, befindet sich im 1. Obergeschoss und verteilt sich auf ca. 61 m² Wohnfläche.
- Die Fußböden in den Zimmern und im Flur sind mit PVC-Belag in Laminatoptik ausgelegt.
- Die Wohnung wird ohne Einbauküche vermietet. Ein modern gefliester Küchenspiegel und alle erforderlichen Anschlüsse und Steckdosen sind in ausreichender Anzahl vorhanden, um eine moderne Einbauküche aufzustellen.
- Das geflieste Bad ist mit Fenster und Dusche ausgestattet.
- Am Wohnzimmer befindet sich ein Balkon mit Stromanschluss.
- Die Wohnung hat moderne weiße Türen.
- Ein Kellerraum mit Elektroanschluss wird zur Verfügung gestellt.
- Ein Parkplatz hinter dem Haus kann optional dazu gemietet werden.
Sonstiges
Über die Genossenschaftsanteile i. H. v. 2.080,00 EUR kann eine zinslose Ratenzahlungsvereinbarung abgeschlossen werden
Lage
Einkaufsmöglichkeiten für den täglichen Bedarf (Discounter), Bäcker sowie Kindertagesstätten
sind in kürzester Zeit zu erreichen.
Sie sehen gerade einen Platzhalterinhalt von Google Maps. Um auf den eigentlichen Inhalt zuzugreifen, klicken Sie auf die Schaltfläche unten. Bitte beachten Sie, dass dabei Daten an Drittanbieter weitergegeben werden.
Mehr InformationenDirektanfrage
Bad mit Wanne, Balkon, Flur, Kellerraum, Küchenraum -Das Objekt liegt in einem ansprechenden Mehrfamilienhaus in gepflegter Wohnlage. - Die Wohnung ist saniert, befindet sich im 1. Obergeschoss und verteilt sich auf ca. 61 m² Wohnfläche. - Die Fußböden in den Zimmern und im Flur sind mit PVC-Belag in Laminatoptik ausgelegt. - Die Wohnung wird ohne Einbauküche vermietet. Ein modern gefliester Küchenspiegel und alle erforderlichen Anschlüsse und Steckdosen sind in ausreichender Anzahl vorhanden, um eine moderne Einbauküche aufzustellen. - Das geflieste Bad ist mit Fenster und Dusche ausgestattet. - Am Wohnzimmer befindet sich ein Balkon mit Stromanschluss. - Die Wohnung hat moderne weiße Türen. - Ein Kellerraum mit Elektroanschluss wird zur Verfügung gestellt. - Ein Parkplatz hinter dem Haus kann optional dazu gemietet werden.
680
Ihre neue Wohnung?
Jetzt Schnellanfrage verschicken
Sie interessieren sich für dieses Mietangebot? Tragen Sie Ihre Daten ein und
senden uns diese Anfrage. Wir melden uns schnellstmöglich bei Ihnen.

