Erstbezug in unserem Neubau in Mühl Rosin

Modern wohnen und Zuhause sein

Hier entsteht modernes Wohnen in naturnaher Umgebung – energieeffizient und komfortabel: Zwei Häuser mit ausgebautem Dachgeschoss errichtet unsere Genossenschaft neu im idyllischen Mühl Rosin. Sechs moderne und großzügige Wohnungen mit einem hohen energetischen Standard werden bis Ende März 2026 fertiggestellt sein.

Der Neubau entsteht nach den Maßstäben „Energieeffizienzhaus 40“. Zwei Wärmepumpen, eine Photovoltaikanlage auf dem Dach sowie große Dämmstärken an der Gebäudehülle sind die Voraussetzungen, dass für die Beheizung nur 31,8 kWh pro m² Wohnfläche im Jahr benötigt werden. Die zukünftigen Bewohner werden das wegen der dauerhaft niedrigen Heizkosten zu schätzen wissen.

Alle Wohnungen verfügen über Fußbodenheizung, eine Terrasse oder einen Balkon sowie ebenerdige Duschen. Die Bäder der größeren Wohnungen sind zusätzlich mit einer Wanne ausgestattet. In jeder Wohnung gibt es einen mindestens 5 m² großen Abstellraum.

Parkplätze – die für die Einrichtung von E-Ladesäulen vorbereitet sind – und ein Fahrradhaus werden harmonisch in die Gestaltung der Außenanlagen integriert.

Diese Wohnungen stehen zur Auswahl

Anzahl Zimmer
ca. Wohnfläche (m²)
Wohnung 1
3
79,04
Wohnung 2
3
79,66
Wohnung 3
4
122,38
Wohnung 4
4
95,56
Wohnung 5
2
62,75
Wohnung 6
4
122,41

Grundrissbeispiel für eine 3-Raum-Wohnung im Erdgeschoss (ca. 80 m²)

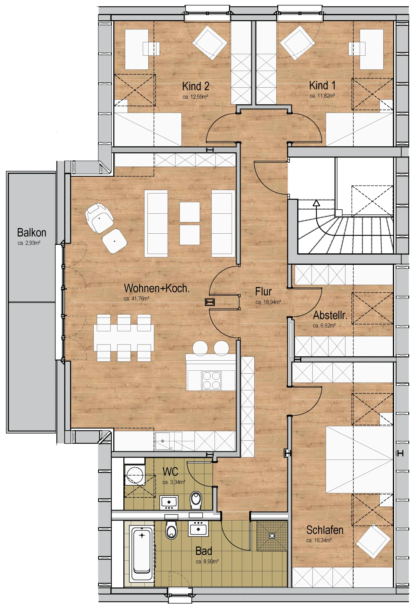
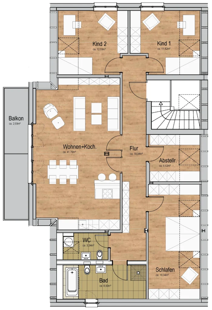
Grundrissbeispiel für eine 4-Raum-Wohnung im Dachgeschoss (ca. 123 m²)

360° Tour

Jetzt einen Einblick erhalten

Sie sehen gerade einen Platzhalterinhalt von Standard. Um auf den eigentlichen Inhalt zuzugreifen, klicken Sie auf den Button unten. Bitte beachten Sie, dass dabei Daten an Drittanbieter weitergegeben werden.

Weitere Informationen

Hinweis zur 3DVisualisierung
Die dargestellte 3DAnimation dient der illustrativen Darstellung einer Beispiel-Wohnung im Neubau. Sie ist nicht verbindlich und kann in einzelnen Punkten vom tatsächlichen Ausführungsstand abweichen.
Insbesondere gilt:

  • Fensterhöhen und bauliche Details können von der späteren Ausführung abweichen.
  • Farben und Materialien, insbesondere in Bad und Küche, können variieren.
  • Die gezeigte Möblierung ist lediglich ein Einrichtungsbeispiel und nicht Bestandteil der Ausstattung.
  • Maßangaben, Proportionen und Flächen dienen der Orientierung und sind nicht verbindlich.

Verbindlich sind ausschließlich die Angaben in den Vertragsunterlagen, Baubeschreibungen und Ausstattungsmerkmalen.