Startseite » Immobilien » Neubau in traumhafter Lage in Mühl Rosin
Neubau in traumhafter Lage in Mühl Rosin
18276 Mühl Rosin, Dachgeschosswohnung zur Miete
Kontaktdaten
-
NameFrau Nadine Sterl
-
FirmaAllgemeine Wohnungsbaugenossenschaft Güstrow - Parchim und Umgebung eG
-
AnschriftFriedrich-Engels-Straße 12
18273 Güstrow -
E-Mail
-
E-Mail
-
Telefon
-
Telefon
- zum Kontaktformular
Objektdaten
-
Objekt-ID533/1/3
-
ObjekttypenDachgeschosswohnung, Wohnung
-
AdresseBölkower Chaussee 17
18276 Mühl Rosin
(Güstrow Mühl Rosin) -
Etagen im Haus2
-
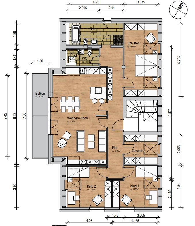
Wohnfläche ca.122,38 m²
-
Zimmer4
-
Schlafzimmer3
-
Badezimmer2
-
Balkone1
-
HeizungsartFußbodenheizung
-
Baujahr2026
-
Verfügbar absofort
-
Kaution6.720,00 EUR
-
Kaltmiete1.652,00 EUR
-
Nebenkosten152,00 EUR
-
Heizkosten152,00 EUR
-
Warmmiete1.956,00 EUR
Ausstattung / Merkmale
- ✓ Außenstellplatz
- ✓ Badewanne
- ✓ Balkon
- ✓ Dusche
- ✓ Kein Keller
Objektbeschreibung
Ausstattung
Abstellraum, Bad mit Wanne/Dusche, Balkon, Küchenraum
In Mühl Rosin entstehen sechs hochwertige Neubauwohnungen in zwei modernen Mehrfamilienhäusern. Die Wohnungen bieten energieeffizientes Wohnen im Effizienzhaus 40 Standard – mit Wärmepumpen, Photovoltaik und sehr guter Dämmung für dauerhaft niedrige Heizkosten.
Ausstattung
- Fußbodenheizung
- Balkon
- Ebenerdige Dusche und zusätzlich mit Badewanne
- Abstellraum
- Stellplätze vorbereitet für E Ladesäulen
- Fahrradhaus
Sonstiges
Stellplätze 40€
Lage
Naturnahe Umgebung am Inselsee und den Heidbergen, gleichzeitig gute Anbindung nach Güstrow (7 Minuten mit dem Auto, Buslinie 252). Ideal für alle, die ruhig, modern und nachhaltig wohnen möchten.
Sie sehen gerade einen Platzhalterinhalt von Google Maps. Um auf den eigentlichen Inhalt zuzugreifen, klicken Sie auf die Schaltfläche unten. Bitte beachten Sie, dass dabei Daten an Drittanbieter weitergegeben werden.
Mehr InformationenDirektanfrage
Abstellraum, Bad mit Wanne/Dusche, Balkon, Küchenraum In Mühl Rosin entstehen sechs hochwertige Neubauwohnungen in zwei modernen Mehrfamilienhäusern. Die Wohnungen bieten energieeffizientes Wohnen im Effizienzhaus 40 Standard – mit Wärmepumpen, Photovoltaik und sehr guter Dämmung für dauerhaft niedrige Heizkosten. Ausstattung •Fußbodenheizung •Balkon •Ebenerdige Dusche und zusätzlich mit Badewanne •Abstellraum •Stellplätze vorbereitet für E Ladesäulen •Fahrradhaus
1956
Ihre neue Wohnung?
Jetzt Schnellanfrage verschicken
Sie interessieren sich für dieses Mietangebot? Tragen Sie Ihre Daten ein und
senden uns diese Anfrage. Wir melden uns schnellstmöglich bei Ihnen.











