Startseite » Immobilien » 2-Raum-Wohnung mit Balkon in gepflegter Wohnumgebung!
2-Raum-Wohnung mit Balkon in gepflegter Wohnumgebung!
19370 Parchim, Wohnung zur Miete
Anlagen / Links
Kontaktdaten
-
NameHerr Roland Schumacher
-
FirmaAllgemeine Wohnungsbaugenossenschaft Güstrow - Parchim und Umgebung eG
-
AnschriftFriedrich-Engels-Straße 12
18273 Güstrow -
E-Mail
-
Telefon
-
Telefon
- zum Kontaktformular
Objektdaten
-
Objekt-ID6111/1/10
-
ObjekttypWohnung
-
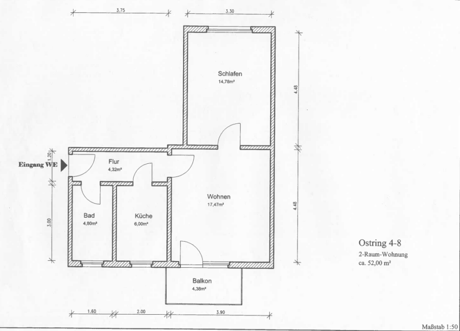
AdresseOstring 4
19370 Parchim
(Parchim Parchim) -
Etage3
-
Etagen im Haus3
-
Wohnfläche ca.51,21 m²
-
Zimmer2
-
Schlafzimmer1
-
Badezimmer1
-
Balkone1
-
HeizungsartFernwärme
-
Baujahr1964
-
Verfügbar ab01.08.2026
-
Kaution1.600,00 EUR
-
Kaltmiete307,26 EUR
-
Nebenkosten80,00 EUR
-
Heizkosten90,00 EUR (in der Warmmiete enthalten)
-
Warmmiete477,26 EUR (Heizkosten enthalten)
Ausstattung / Merkmale
- ✓ Badewanne
- ✓ Balkon
- ✓ Keller
- ✓ Kunststoffboden
Objektbeschreibung
Beschreibung
Vollsaniert: Tapeten Farbe, Türen, PVC Fußbodenbelag, E-Anlage, Sanitär, Heizanlage und Fenster neu
Ausstattung
Bad mit Wanne, Balkon, Flur, Kellerraum, Küchenraum
Sonstiges
Für diese Wohnung ist ein Wohnberechtigungsschein der Stadt Parchim erforderlich. Dieser kann zusammen mit diesem Angebot im Stadthaus beantragt werden.
Lage
Einkaufsmöglichkeiten für den täglichen Bedarf (Discounter), Bäcker sowie Kindertagesstätten
sind in kürzester Zeit zu erreichen.
Sie sehen gerade einen Platzhalterinhalt von Google Maps. Um auf den eigentlichen Inhalt zuzugreifen, klicken Sie auf die Schaltfläche unten. Bitte beachten Sie, dass dabei Daten an Drittanbieter weitergegeben werden.
Mehr InformationenDirektanfrage
Bad mit Wanne, Balkon, Flur, Kellerraum, Küchenraum
477.26
Ihre neue Wohnung?
Jetzt Schnellanfrage verschicken
Sie interessieren sich für dieses Mietangebot? Tragen Sie Ihre Daten ein und
senden uns diese Anfrage. Wir melden uns schnellstmöglich bei Ihnen.

