Startseite » Immobilien » altersfreundliche Wohnung mit Fahrstuhl in der Südstadt
altersfreundliche Wohnung mit Fahrstuhl in der Südstadt
18273 Güstrow, Erdgeschosswohnung zur Miete
Anlagen / Links
Kontaktdaten
-
NameFrau Nadine Sterl
-
FirmaAllgemeine Wohnungsbaugenossenschaft Güstrow - Parchim und Umgebung eG
-
AnschriftFriedrich-Engels-Straße 12
18273 Güstrow -
E-Mail
-
E-Mail
-
Telefon
-
Telefon
- zum Kontaktformular
Objektdaten
-
Objekt-ID239/1/102
-
ObjekttypenErdgeschosswohnung, Wohnung
-
AdresseFriedrich-Engels-Str. 22
18273 Güstrow
(Güstrow Südstadt) -
EtageEG
-
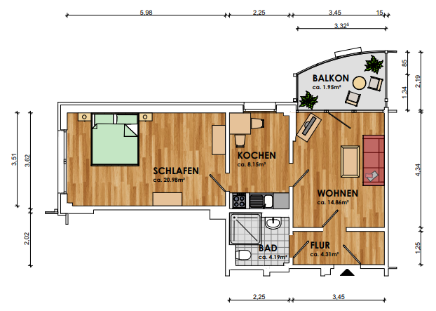
Wohnfläche ca.55,55 m²
-
Zimmer2
-
Balkone1
-
Baujahr1978
-
Verfügbar absofort
-
Kaution3.680,00 EUR
-
Kaltmiete445,00 EUR
-
Nebenkosten90,00 EUR
-
Heizkosten110,00 EUR
-
Warmmiete645,00 EUR (zzgl. Heizkosten)
Ausstattung / Merkmale
- ✓ Balkon
- ✓ Dusche
- ✓ Keller
Energieausweis
-
EnergieausweistypVerbrauchsausweis
-
Gültig bis10-2028
-
Baujahr1978
-
PrimärenergieträgerFernwärme
-
Endenergieverbrauch76,00 kWh/(m²·a)
-
Warmwasser enthaltenja
-
EnergieeffizienzklasseC
Objektbeschreibung
Ausstattung
Bad mit Dusche, Balkon, Flur, Kellerraum, Küchenraum
Sonstiges
Servicepauschale 70€/130€
Lage
Sie sehen gerade einen Platzhalterinhalt von Google Maps. Um auf den eigentlichen Inhalt zuzugreifen, klicken Sie auf die Schaltfläche unten. Bitte beachten Sie, dass dabei Daten an Drittanbieter weitergegeben werden.
Mehr InformationenDirektanfrage
Bad mit Dusche, Balkon, Flur, Kellerraum, Küchenraum
645
Ihre neue Wohnung?
Jetzt Schnellanfrage verschicken
Sie interessieren sich für dieses Mietangebot? Tragen Sie Ihre Daten ein und
senden uns diese Anfrage. Wir melden uns schnellstmöglich bei Ihnen.

