Startseite » Immobilien » 3-Raumwohnung mit Balkon in gepflegter Wohnumgebung
3-Raumwohnung mit Balkon in gepflegter Wohnumgebung
19370 Parchim, Dachgeschosswohnung zur Miete
Anlagen / Links
Kontaktdaten
-
NameHerr Roland Schumacher
-
FirmaAllgemeine Wohnungsbaugenossenschaft Güstrow - Parchim und Umgebung eG
-
AnschriftFriedrich-Engels-Straße 12
18273 Güstrow -
E-Mail
-
Telefon
-
Telefon
- zum Kontaktformular
Objektdaten
-
Objekt-ID6120/1/5
-
ObjekttypenDachgeschosswohnung, Wohnung
-
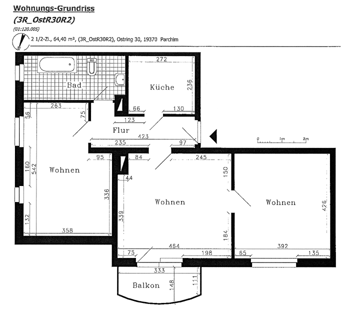
AdresseOstring 30
19370 Parchim
(Parchim Parchim) -
Etagen im Haus3
-
Wohnfläche ca.66,90 m²
-
Zimmer3
-
Schlafzimmer2
-
Badezimmer1
-
Balkone1
-
KücheEinbauküche
-
HeizungsartZentralheizung
-
Wesentlicher EnergieträgerGas
-
Baujahr1957
-
Verfügbar ab01.06.2026
-
Kaution2.080,00 EUR
-
Kaltmiete535,00 EUR
-
Nebenkosten105,00 EUR
-
Heizkosten110,00 EUR (in der Warmmiete enthalten)
-
Warmmiete750,00 EUR (Heizkosten enthalten)
Ausstattung / Merkmale
- ✓ Badewanne
- ✓ Balkon
- ✓ Einbauküche
- ✓ Fliesenboden
- ✓ Keller
- ✓ Kunststoffboden
Energieausweis
-
EnergieausweistypVerbrauchsausweis
-
Gültig bis01-2029
-
Baujahr1957
-
PrimärenergieträgerGas
-
Endenergieverbrauch122,00 kWh/(m²·a)
-
Warmwasser enthaltenja
-
EnergieeffizienzklasseD
Objektbeschreibung
Ausstattung
Bad mit Wanne, Balkon, Flur, Kellerraum, Küchenraum
Bei dem Objekt handelt es sich um ein gepflegtes Mehrfamilienhaus mit insgesamt 5 Wohneinheiten.
Die Wohnung ist im gepflegten Zustand und befindet sich im 2. Obergeschoss, welches auch gleichzeitig das Dachgeschoss ist.
Alle Zimmer der Wohnung sind vom Flur aus zu betreten. In den Zimmern und im Flur sind die Fußböden mit einem PVC Fußbodenbelag in Laminatoptik ausgelegt.
Im Bad und Küchenraum sind die Fußböden gefliest.
Das Bad mit Fenster ist mit Wanne, Wand-WC und Waschmaschinenanschluss ausgestattet.
Am Wohnzimmer angrenzend befindet sich ein Balkon mit Stromanschluss.
Die Wohnung hat moderne Türen, die teilweise mit Kunststoffeinsatz, für einen lichtdurchfluteten Flur sorgen.
Sonstiges
Über die Genossenschaftsanteile kann eine zinslose Ratenzahlungsvereinbarung abgeschlossen werden.
Lage
Einkaufsmöglichkeiten für den täglichen Bedarf (Discounter), Bäcker sowie Kindertagesstätten
sind in kürzester Zeit zu erreichen.
Sie sehen gerade einen Platzhalterinhalt von Google Maps. Um auf den eigentlichen Inhalt zuzugreifen, klicken Sie auf die Schaltfläche unten. Bitte beachten Sie, dass dabei Daten an Drittanbieter weitergegeben werden.
Mehr InformationenDirektanfrage
Bad mit Wanne, Balkon, Flur, Kellerraum, Küchenraum Bei dem Objekt handelt es sich um ein gepflegtes Mehrfamilienhaus mit insgesamt 5 Wohneinheiten. Die Wohnung ist im gepflegten Zustand und befindet sich im 2. Obergeschoss, welches auch gleichzeitig das Dachgeschoss ist. Alle Zimmer der Wohnung sind vom Flur aus zu betreten. In den Zimmern und im Flur sind die Fußböden mit einem PVC Fußbodenbelag in Laminatoptik ausgelegt. Im Bad und Küchenraum sind die Fußböden gefliest. Das Bad mit Fenster ist mit Wanne, Wand-WC und Waschmaschinenanschluss ausgestattet. Am Wohnzimmer angrenzend befindet sich ein Balkon mit Stromanschluss. Die Wohnung hat moderne Türen, die teilweise mit Kunststoffeinsatz, für einen lichtdurchfluteten Flur sorgen.
750
Ihre neue Wohnung?
Jetzt Schnellanfrage verschicken
Sie interessieren sich für dieses Mietangebot? Tragen Sie Ihre Daten ein und
senden uns diese Anfrage. Wir melden uns schnellstmöglich bei Ihnen.

